ШКАФЫ КРУ Серии К-204 ЭП
Шкафы серии К-204 ЭП рассчитаны на номинальный ток главных цепей до 1600 А и номинальное напряжение 6 и 10 кВ. Изготавливаются в соответствии с требованиями ТУ 3414-006-05758859-99.
- Удобное кабельное подключение
- Линейный отсек шкафа К-204 ЭП имеет большие внутренние размеры, что обеспечивает удобство обслуживания шкафа и монтажа кабельных присоединений
- Корпус шкафа КРУ изготавливается из высококачественной стали на современном станочном оборудовании
- Конструктивно-технические особенности:
- двухстороннее обслуживание шкафа;
- нижнее расположение сборных шин;
- напольный выкатной элемент, не требующий дополнительной сервисной тележки;
- возможность применения большой номенклатуры комплектующих;
- возможность адаптации конструкции под требования проекта;
- высокая ремонтопригодность, не требует специального инструмента;
- простота контроля при обслуживании: зазоров, температуры, усилия затяжки крепежа.
- Состав шкафов:
- линейный отсек;
- отсек сборных шин;
- отсек выкатного элемента;
- релейный отсек.
- Технические параметры
Параметр
К-204 ЭП
Номинальное напряжение, кВ 6; 10
Номинальный ток главных цепей, А 630; 1000; 1250; 1600 Номинальный ток сборных шин, А 630, 1000, 1250, 1600, 2000; 2500; 3150 Номинальный ток отключения выключателей, кА (зависит от типа выключателя) 20; 25; 31,5; 40; 50 Ток термической стойкости (время протекания тока — 3с), кА 20; 25; 31,5; 40; 50 Ток электродинамической стойкости главных цепей, кА 51; 64; 81; 102; 128 Испытание напряжением грозового импульса, кВ 75 Испытание напряжением 50 гц/1 мин, кВ 42 Номинальное напряжение вспомогательных цепей: постоянного тока, В 110, 220 переменного тока, В 127, 230 Вид изоляции твердая и воздушная Вид линейных высоковольтных подсоединений кабельные (нижнее, верхнее),
шинные (воздушные)Условия обслуживания двухстороннее Степень защиты (при закрытых дверях) IP20 Вид управления местное; дистанционное Климатические условия: температура от –25°С до +40°С относительная влажность до 80% при 25°С атмосферное давление 630–800 мм рт. ст. Сейсмостойкость 9 баллов Габаритные размеры, мм: Ширина, не более, мм 750 Глубина, не более, мм 1150, 1240 Высота, не более, мм 2300, 2950 Масса шкафов, не более, кг 750
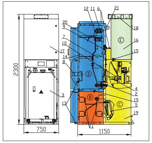
- Шкаф КРУ серии К-204 ЭП
- Сборные шины
- Проходной изолятор контактного узла
- Выкатной элемент с силовым элементом
- Подвижные шторки
- Привод шторочного механизма
- Клапаны сброса избыточного давления
- Трансформатор тока
- Трансформатор тока нулевой последовательности
- Заземлитель
- Привод заземлителя
- Ограничитель перенапряжения
- Опорный изолятор с делителем напряжения
- Кабельный зажимной хомут
- Шина заземления
- Оптический датчик дуговой защиты
- Низковольтный отсек
- Дверь релейного отсека
- Лоток для контрольных кабелей
- Корпус
- Шины (отводы)
- Устройство для подъема ячейки
