ШКАФЫ КРУ Серии К-204М ЭП
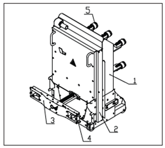
Шкаф КРУ К-204М ЭП представляет собой жесткую каркасную конструкцию с металлическими перегородками, крышками и дверями.
- Единая шина заземления
- Оперирование заземлителем с лицевой панели шкафа
- Степень защиты оболочек по ГОСТ 14254 до IP4X
-
Разновидностью шкафов К-204 является шкаф К-204М ЭП. Шкаф КРУ К-204М ЭП представляет собой жесткую каркасную конструкцию с металлическими перегородками, крышками и дверями. Корпус и перегородки шкафов КРУ изготавливаются из стального высококачественного листа с алюминиево-цинковым покрытием. Двери окрашиваются порошковой краской.
-
Шкафы КРУ К-204М ЭП могут поставляться как отдельно, так и для расширения распределительных устройств КРУ К-204 (К-205), находящихся в эксплуатации, и стыковаться с ними без переходных шкафов.
-
Шкафы К-204М ЭП применяются для распределительных устройств заказчика, предъявляющих дополнительные требования к шкафам К-204 ЭП.
- Конструктивно-технические особенности:
- заземлитель с пружинной доводкой ножей заземления (мгновенного действия);
- наличие двери отсека выкатного элемента (ВЭ) с возможностью оперирования выкатным элементом при закрытой двери;
- перемещение выкатного элемента осуществляется за счет винтового механизма . Для перемещения ВЭ применяется специальная рукоятка винтового привода;
- единая земляная шина;
- степень защиты оболочек по ГОСТ 14254 до IP4X;
- оперирование заземлителем с лицевой панели шкафа;
- для локализации отсека сборных шин в каждом шкафу, как опция, могут устанавливаться проходные изоляторы.
- Силовой выключатель
- Корпус
- Панель механических блокировок
- Фиксаторы
- Ламельный контакт
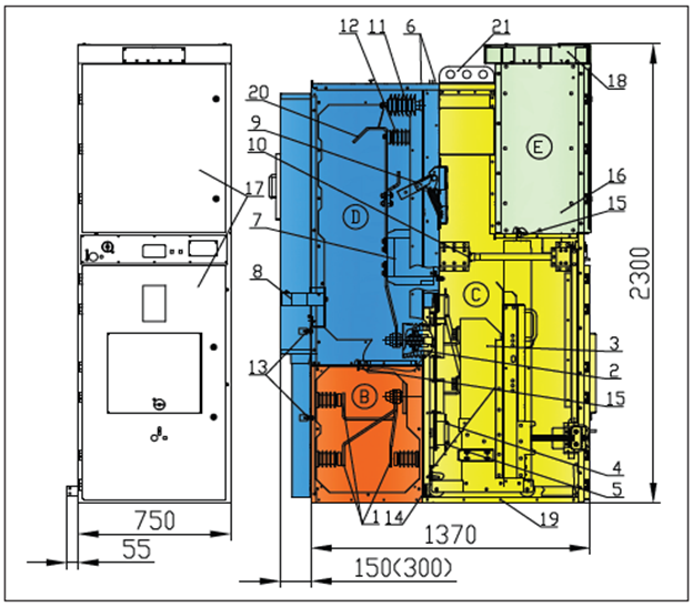
- b. Отсек сборных шин c. Отсек выкатного элемента d. Отсек линейный e. Отсек низковольтный
- Сборные шины
- Проходной изолятор контактного узла
- Выкатной элемент с силовым элементом
- Подвижные шторки
- Привод шторочного механизма
- Клапаны сброса избыточного давления
- Трансформатор тока
- Трансформатор тока нулевой последовательности
- Заземлитель
- Привод заземлителя
- Ограничитель перенапряжения
- Опорный изолятор с делителем напряжения
- Кабельный зажимной хомут
- Шина заземления
- Оптический датчик дуговой защиты
- Низковольтный отсек
- Двери шкафа
- Лоток для контрольных кабелей
- Корпус
- Шины (отводы)
- Устройство для подъема ячейки
